|
加固型限位可曲撓橡膠接頭具有良好的綜合性能,主要用于原水和污水的提升和輸送,火力發電廠的給水和冷卻循環水,冶金行業,冷凝水,化工行業的化學物質的管道輸送,石化行業的冷卻,稀釋及其它行業長短距離管線間的柔性連接。因為橡膠具有較高的耐磨性,還適用于一切行業的粒狀和粉狀及汽體的低溫輸送
使用說明:
高層給水使用橡膠接頭時,管道必須有固定支撐或固定托架,否則產品應安裝防拉脫裝置。固定支撐或托架的力必須大于軸向力,否則也應安裝防拉脫裝置。
適用介質:
根據材料不同可制成耐酸、耐堿、耐腐蝕、耐油、耐熱等各個品種,適應多種介質和環境

安裝說明:
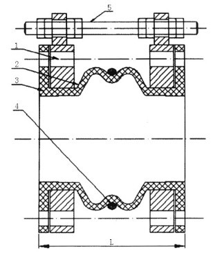
1、 加固型限位可曲撓橡膠接頭管道施工安裝時,必須讓其處于自然狀態,不要人為的在安裝時使產品產生人為變形。這樣可以避免導致產品的早期損壞和使用效果的減弱?汕鷵舷鹉z接頭在安裝時嚴禁超位移極限
2、 如果您將該產品設計安裝于水泵的出口近端或管道的轉角部位是,以及高壓力、高層建筑懸空使用該產品時,管道必須有固定支撐或固定托架,固定支撐和固定托架的受力必須大于軸向力,否則產品應安裝防拉脫限位裝置。
3、 法蘭橡膠接頭在安裝時,須使球體兩端增強圈(突出部分內剛絲繩)全部卡入法蘭槽內,防止管道承壓時球體與法蘭拉脫。上螺栓時,先將對稱的螺栓(六條或四條)擰緊,保證球體于法蘭的全部到位!
4、 橡膠接頭與管道法蘭連接時,螺栓絲桿應伸向管道法蘭一端,以防止螺紋將受壓膨脹時橡膠接頭的拱起部分擠傷或扎傷,每一端的螺栓必須對稱地加壓擰緊,使所有螺栓松緊一致,使用條件惡劣的場所,除增加平墊外,還應增加彈簧墊圈,以防螺母松動!
5、 當橡膠接頭在水(油)泵出口近距離或開停頻繁條件下使用時,為減少橡膠接頭長度的拉伸和壓縮過大而給泵和管道帶來的影響,應在法蘭兩端增加限位裝置!
6、 安裝使用大口徑可曲撓橡膠接頭時,為便于安裝和降低勞動強度,應在法蘭一端制作一節適量長度的短管,待橡膠接頭與短管和另一端管道連接好以后,再把短管與對口端長管焊接。
7、 為便于因短管焊接變形而造成的徑向偏差,應在焊接前用圓鋼或其他相應強度的金屬物把兩端管道法蘭臨時焊接,使橡膠接頭與法蘭連接處形成剛性體,待短管焊接完成后,再把焊接物去掉,以使橡膠接頭在安裝完畢后處于自然狀態!
8、 在實施金屬連接物與法蘭臨時焊接實,切記用掩蓋物將焊接處橡膠接頭蓋住,以免焊接時燒壞球

RFJX-Ⅱ加固型限位可曲撓橡膠接頭安裝數據表


![{sdcms[webname]} {sdcms[webname]}](/skins/2009/dw/images/foot_logo.png)
微信